マスターテック7090Gの最新モデル「7090G-2」の製品情報はこちら

| クローラクレーン | ラッフィングタワー | ||||
|---|---|---|---|---|---|
| 最大つり上げ能力t × m | 90 × 4.3 | 15 × 15.2 | |||
| ブーム(タワー)長さm | 13.8 〜 62.6 | 26.0 〜 44.3 | |||
| ジブ(タワージブ)長さm | 9.1 〜 21.3 | 18.8 〜 37.1 | |||
| 最大ブーム(タワー)+ジブ(タワージブ)長さm | 53.4 + 21.3 | 44.3 + 37.1 | |||
| ロープ速度 | 主巻 | 巻上・巻下 | m/min | *120 〜 3 | |
| 補巻 | 巻上・巻下 | m/min | *120 〜 3 | ─ | |
| タワージブ起伏 | 巻上・巻下 | m/min | ─ | *60 〜 3 | |
| ブーム(タワー)起伏 | 巻上・巻下 | m/min | *48 〜 2 | ||
| サード(オプション) | 巻上・巻下 | m/min | *120 〜 3 | ||
| 旋回速度min-1 {rpm} | 3.2 {3.2} | ||||
| 走行速度km/h | *1.4 / 1.0 | ||||
| 作業時質量(基本姿勢)t | 93 | 101 | |||
| 接地圧kPa {kgf/cm2} | 94.3 {0.96} | 102.5 {1.04} | |||
| 登坂能力(tanθ)%(度) | 40(21.8) | ─ | |||
| 定格ラインプルkN {tf} | 108 {11} | ─ | |||
| 名称 | 日野J08E-UV |
|---|---|
| 定格出力kW/min-1 | 213 / 2,100 |
| 主巻mm | Φ 26 |
|---|---|
| 補巻(タワージブ)mm | Φ 26 |
| ブーム(タワー)mm | Φ 20 |
※各ロープ速度はドラム1層目での値です。
※*印の速度は軽負荷の時の値であり、負荷により速度の変動があります。
※単位は国際単位系のSI単位で、{ }内は従来表示です。

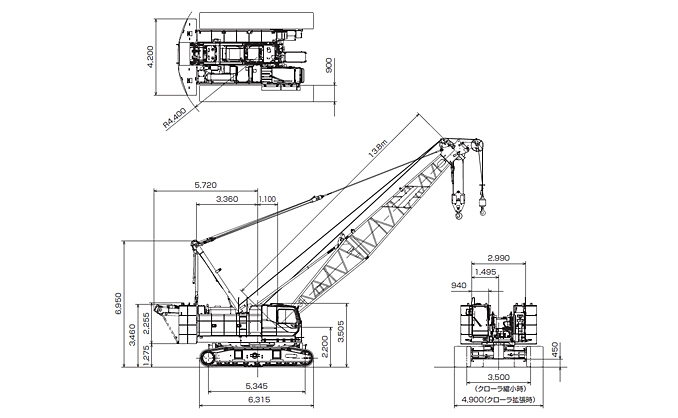
(単位:mm)

CAD図提供サービス、クレーン接地圧/反力計算サービス